-
Option Coffee Bar
PROJECT Option Coffee Bar TYPE Cafe / restaurant LOCATION Panupant Laoraoviroj OWNER Udonthani, Thailand. SITE AREA not indicate USED AREA 150 sq.m STATUS built (2019) -
Option Coffee Bar is located at the city center of Udonthani, Thailand. It has a limited land area which can be approached from main street directly. There are three primary functions which are café, restaurant, and bar, together in one space with time-sharing functions; café / bakery and healthy food restaurant in the morning, while using as a craft-beer bar in the evening.
Since it is a time-sharing, massing and zoning design of this café was created in the way to suit these both contrast functions. There are two floors, the first floor with café and counter bar, and the mezzanine floor for only customers’ seats, which fit in a rectangular function box, by concerning building codes, rules, and regulations. In order to maximize the number of seats, an open-plan and flexible seating is needed. Furthermore, Loose furniture is used at a mezzanine floor in order to flexi the space to be a temporary event or an art showcase.
Simple white box was created to show contrast from the context, together with, focusing on art elements inside. This makes it is easier to catch the eyes from people around the site, while generate ‘simply different’ atmosphere by using all black and white materials.
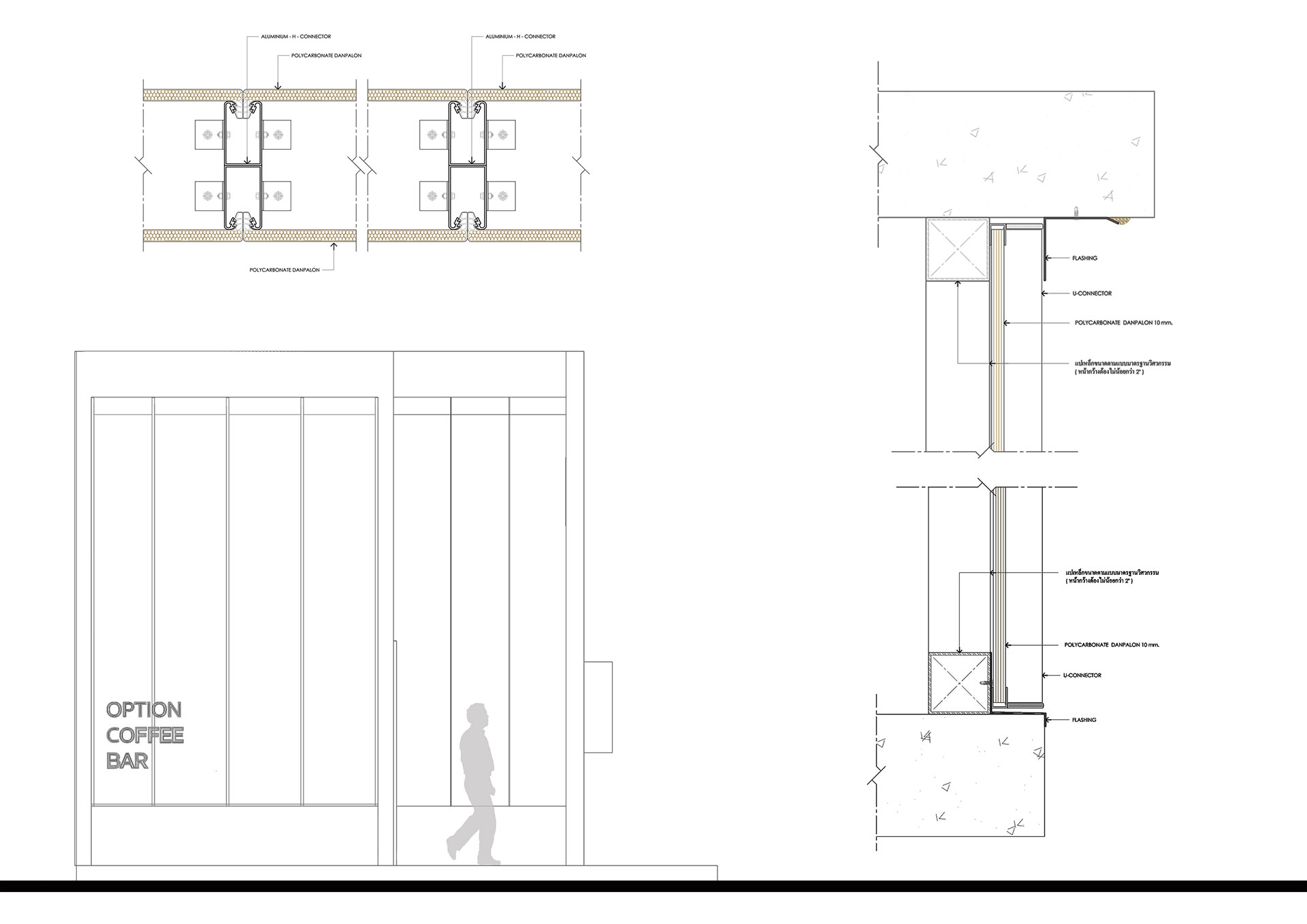
A major plain of this white box comes together with 2 types of voids, which are ‘transparent’ and ‘translucent’. A translucent one which is the front façade, made of double layer of clear-colour polycarbonate which creates variation of light. It allows natural sunlight from outside to inside during daytime as for café, while creates colouring effect from multi-colour lighting from inside during nighttime as a bar. It arouses customers’ sensation by changing emotion during timeline.
[CONTRACTOR | SI Architecture and Construction
PHOTOGRAPHER | Metipat Prommomate] -
-
-
-
-
-
-
-
-
-
-
-
-
-
-
-
-
-
-
-
-
-
-
-
-
-
-
-
-
-
-
-
-
-
-
-
| PROJECT | Option Coffee Bar |
| TYPE | Cafe / restaurant |
| LOCATION | Panupant Laoraoviroj |
| OWNER | Udonthani, Thailand. |
| SITE AREA | not indicate |
| USED AREA | 150 sq.m |
| STATUS | built (2019) |
Option Coffee Bar is located at the city center of Udonthani, Thailand. It has a limited land area which can be approached from main street directly. There are three primary functions which are café, restaurant, and bar, together in one space with time-sharing functions; café / bakery and healthy food restaurant in the morning, while using as a craft-beer bar in the evening.
Since it is a time-sharing, massing and zoning design of this café was created in the way to suit these both contrast functions. There are two floors, the first floor with café and counter bar, and the mezzanine floor for only customers’ seats, which fit in a rectangular function box, by concerning building codes, rules, and regulations. In order to maximize the number of seats, an open-plan and flexible seating is needed. Furthermore, Loose furniture is used at a mezzanine floor in order to flexi the space to be a temporary event or an art showcase.
Simple white box was created to show contrast from the context, together with, focusing on art elements inside. This makes it is easier to catch the eyes from people around the site, while generate ‘simply different’ atmosphere by using all black and white materials.
A major plain of this white box comes together with 2 types of voids, which are ‘transparent’ and ‘translucent’. A translucent one which is the front façade, made of double layer of clear-colour polycarbonate which creates variation of light. It allows natural sunlight from outside to inside during daytime as for café, while creates colouring effect from multi-colour lighting from inside during nighttime as a bar. It arouses customers’ sensation by changing emotion during timeline.
[CONTRACTOR | SI Architecture and Construction
PHOTOGRAPHER | Metipat Prommomate]
-
-
-
-
+ 34
