-
House COVE(R)
PROJECT House COVE(R) TYPE private residence LOCATION Sivalee Suvarnabhumi, Bangphli, Samutprakan, Thailand OWNER Kongkiat Punpanich SITE AREA 64 sq.wah (256 sq.m) USED AREA 170 sq.m. STATUS built (2021) -
A two-story single-detached house settles in a village near Suvarnabhumi Airport, with its size of 150 square meters, located in only two-third part of 256 square meters plot. It was too small for a family with five members; a couple with two kids and grandma. The rest one-third of the land was left over with no usage; thus, it is turned into another extension house.
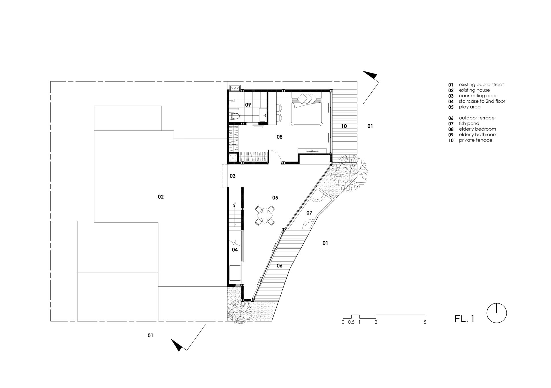
Not only small curve-triangular land shape, but also located at the corner which connects to both sides of public street. An extension shape is similar to a cove which parallel with the curve of the land, in order to use the space to its full potential. Three-floor is created to combine all functions needed while setback area is used for an outdoor tiny landscape with a relaxation pond. There is an activity space for kids on the first floor which connects to an existing house (living and dining area) to allows children playing without limitation while being in sight from parents. An elderly bedroom is also linked with both kids’ area and an outdoor terrace for relaxation. Master bedroom is on the second floor which provides large bed space as the kids still sleep in the same room as their parents. Private living area is on the top floor for parents only, as the children are not allowed to watch television. This room is futurally turned into fitness or other purpose. Rooftop garden is provided since an existing garden is replaced by the building, it is elevated to the top floor instead, to remain green area with increasing indoor used space of the house.
Steel structure is applied, mainly for reducing beams’ depth which affects total building height, yet it helps decreasing column size which increasing more interior space. Two staircases are placed in different corner which minimize circulation. Double space in between the stairs with skylight allows natural sunlight through downstairs, instead of creating vertical voids with lacks privacy.
As the house located at the corner while privacy is needed, façade cover is required. Vertical aluminum trellis together with perforated metal are used to cover all cove, continuing to an existing house, to harmonize both buildings together. For the maintenance issue, powder-coated aluminum is used for the upper floors façade which is not only lightweight, but also zero-maintenance, since it is hard to fix or repaint at the high level. However, metal is used for the house wall, since it can easily be maintained, while cheaper price in Thailand.
[CIVIL ENGINEER | Chittinat Wongmaneeprateep
CONTRACTOR | DWN Builder
INTERIOR CONTRACTOR | Trigon Design Con
PHOTOGRAPHER | Anan Naruphantawat] -
-
-
-
-
-
-
-
-
-
-
-
-
-
-
-
-
-
-
-
-
-
-
-
-
-
-
-
-
-
-
-
-
-
-
-
-
-
-
-
-
-
| PROJECT | House COVE(R) |
| TYPE | private residence |
| LOCATION | Sivalee Suvarnabhumi, Bangphli, Samutprakan, Thailand |
| OWNER | Kongkiat Punpanich |
| SITE AREA | 64 sq.wah (256 sq.m) |
| USED AREA | 170 sq.m. |
| STATUS | built (2021) |
A two-story single-detached house settles in a village near Suvarnabhumi Airport, with its size of 150 square meters, located in only two-third part of 256 square meters plot. It was too small for a family with five members; a couple with two kids and grandma. The rest one-third of the land was left over with no usage; thus, it is turned into another extension house.
Not only small curve-triangular land shape, but also located at the corner which connects to both sides of public street. An extension shape is similar to a cove which parallel with the curve of the land, in order to use the space to its full potential. Three-floor is created to combine all functions needed while setback area is used for an outdoor tiny landscape with a relaxation pond. There is an activity space for kids on the first floor which connects to an existing house (living and dining area) to allows children playing without limitation while being in sight from parents. An elderly bedroom is also linked with both kids’ area and an outdoor terrace for relaxation. Master bedroom is on the second floor which provides large bed space as the kids still sleep in the same room as their parents. Private living area is on the top floor for parents only, as the children are not allowed to watch television. This room is futurally turned into fitness or other purpose. Rooftop garden is provided since an existing garden is replaced by the building, it is elevated to the top floor instead, to remain green area with increasing indoor used space of the house.
Steel structure is applied, mainly for reducing beams’ depth which affects total building height, yet it helps decreasing column size which increasing more interior space. Two staircases are placed in different corner which minimize circulation. Double space in between the stairs with skylight allows natural sunlight through downstairs, instead of creating vertical voids with lacks privacy.
As the house located at the corner while privacy is needed, façade cover is required. Vertical aluminum trellis together with perforated metal are used to cover all cove, continuing to an existing house, to harmonize both buildings together. For the maintenance issue, powder-coated aluminum is used for the upper floors façade which is not only lightweight, but also zero-maintenance, since it is hard to fix or repaint at the high level. However, metal is used for the house wall, since it can easily be maintained, while cheaper price in Thailand.
[CIVIL ENGINEER | Chittinat Wongmaneeprateep
CONTRACTOR | DWN Builder
INTERIOR CONTRACTOR | Trigon Design Con
PHOTOGRAPHER | Anan Naruphantawat]
-
-
-
-
+ 40
